GIOĂNG PHỐT- SEALS
CÔNG CỤ - SEALTOOL
thông tin liên hệ

-
Mô tả chi tiết
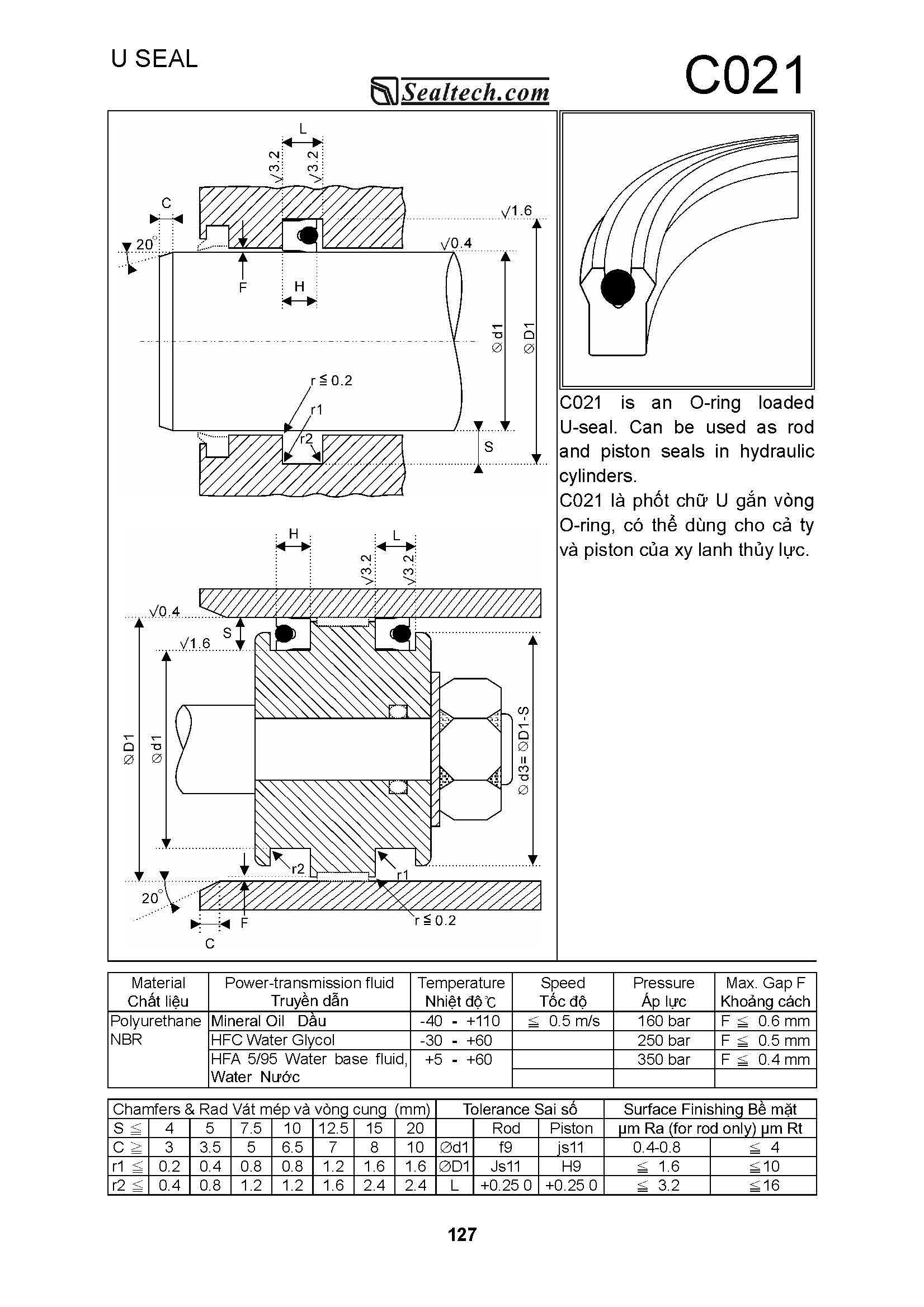
C021 là Phốt chữ U có oring ở giữa, được cấu tạo từ vật liệu HPU95A Red + Oring, là sản phẩm phốt được tiện ra từ máy SMT ( Seal Master ) và vật liệu cao cấp được nhập khẩu từ Áo.
Ưu điểm: có thể tạo ra những kích thước ngoài tiêu chuẩn, với mã hàng (D021), tiêu chuẩn: với mã hàng (D021) với chất lượng vượt trội.


.jpg)









